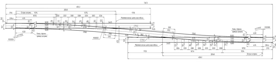
Designed for transfer of rolling stock from one track to another. It is used on railway lines with mixed cargo-passenger train traffic and speeds of passenger trains on the straight track up to 250 km/hour. Design features: exit: rail string subduction, separate fastening; elastic bar terminals Skl; pads with flanges; with subsequent welding of rail joints in the track by aluminium-thermite method; switches: flexible sharps with welded rail ends; welded pads with cushions; elastic U-shaped spring terminals; headsets with external closures located in hollow metal bars; crosses: with continuous rolling surface with flexible-turn core; headsets with external closures.
Tell us what you need and get quotes from verified suppliers